What we do

We deliver comprehensive engineering and design documentation that supports every stage of industrial and infrastructure projects. Our services are structured to ensure technical accuracy, seamless coordination, and full compliance with client specifications. Here’s what we offer:

πŸ“„Project Specification
Development of detailed project requirements and design criteria tailored to each scope.

🀝 Collaborative Project Integration
Seamless coordination with external companies and multidisciplinary teams within shared project environments.

πŸ”§ Piping & Instrumentation Diagram (P&ID)
Schematics that map out process flow, instrumentation, and control systems.

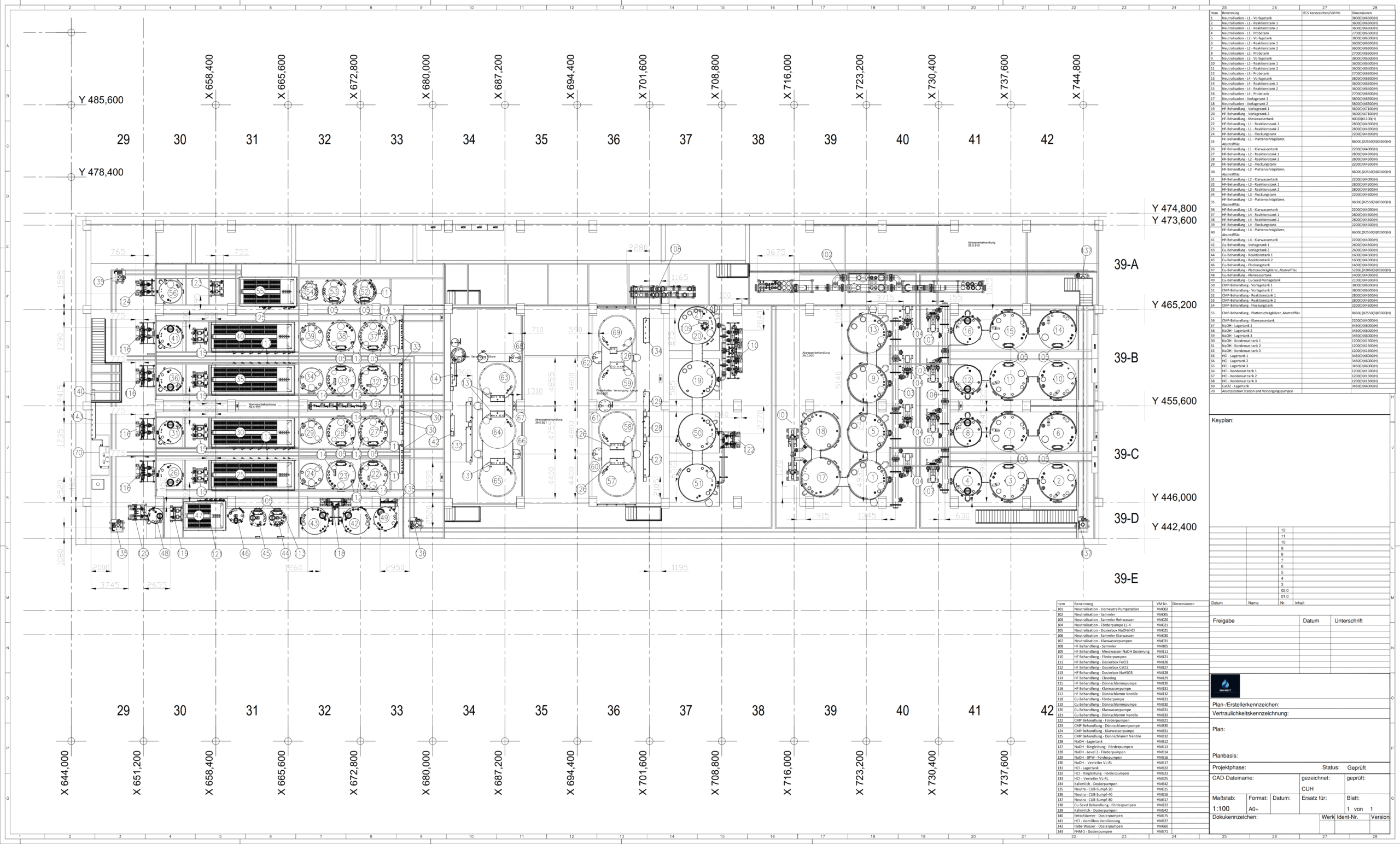
🧭 Equipment Layout
Precise placement of equipment to optimize space, accessibility, and operational efficiency.

πŸ› οΈ AutoCAD Plant 3D Spec Creation
Custom development of piping specifications and component catalogs for intelligent 3D modeling and documentation.

πŸ”’ Process Calculation
Engineering calculations that define process parameters, performance, and system behavior.

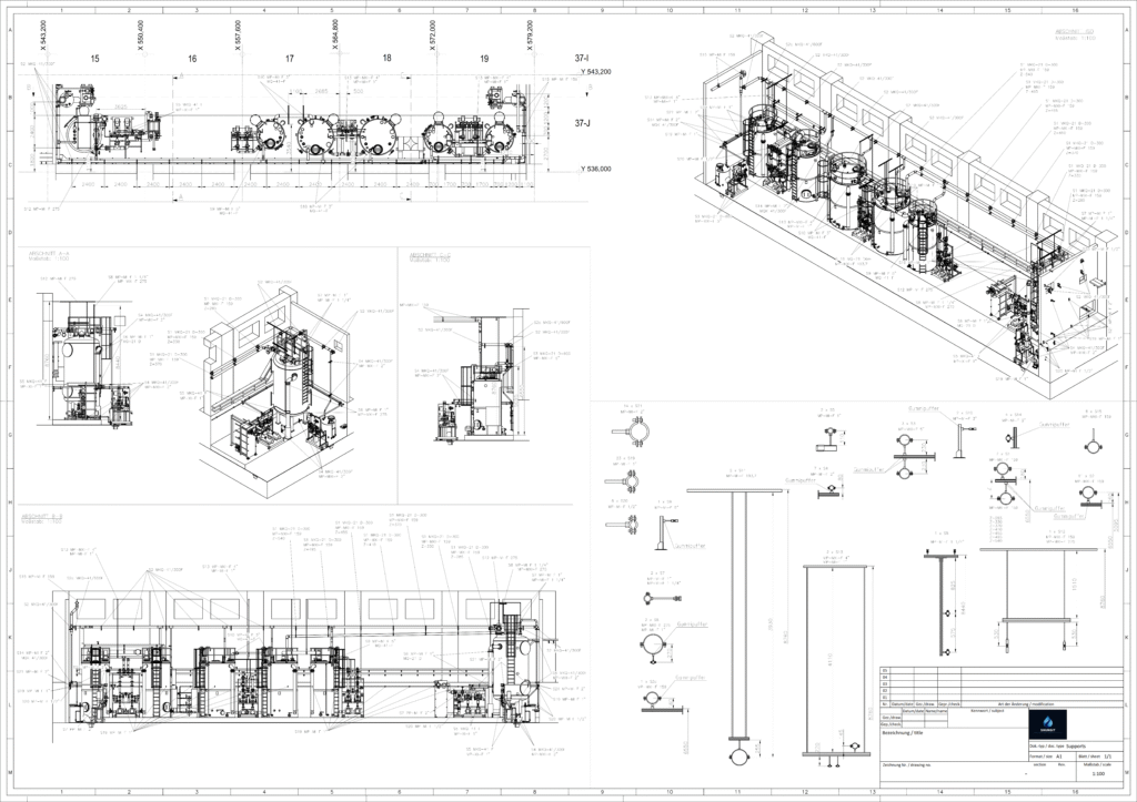
🧱 3D Models
Intelligent 3D representations of systems and structures for design validation and visualization.

πŸ—ΊοΈ Plot Plan Drawings
Site-wide layouts showing equipment, piping, and infrastructure positioning.

πŸ“ General Arrangement (GA) Drawings
Detailed views of assemblies and components for fabrication and installation.

🧩 Piping ISO Fabrication Drawings
Isometric drawings for accurate pipe fabrication and field assembly.

πŸ”— Interconnecting Piping
Documentation of piping connections between systems, skids, and equipment.

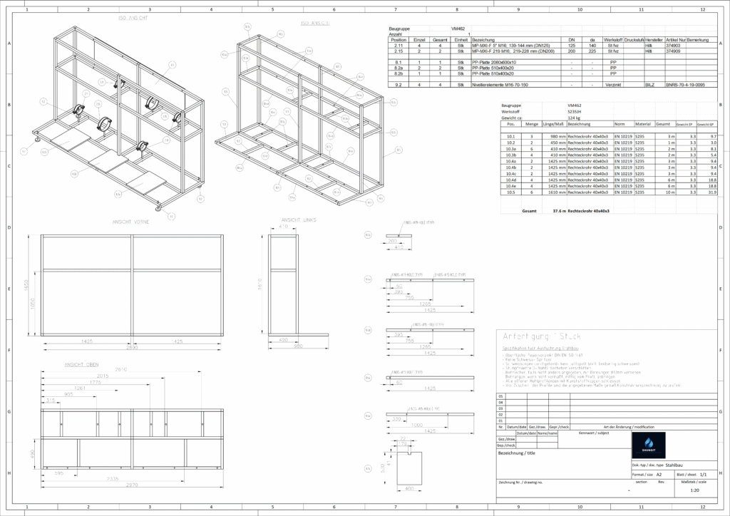
πŸ—οΈ Skid Structural Fabrication Drawings
Structural detailing for modular skid units, ensuring strength and transportability.

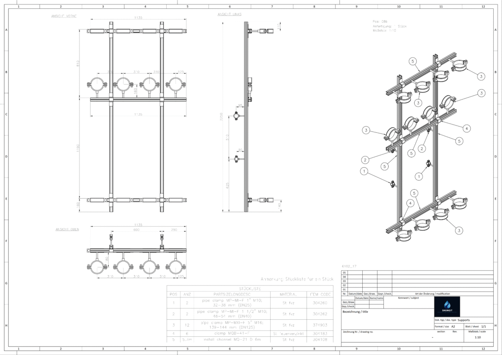
🧱 Pipe Support Drawings
Design of support systems to maintain piping integrity and alignment.

πŸ“ Pipe Support Location Drawings
Exact placement of supports across the facility for installation accuracy.

⚑ Electrical Cable Tray/Conduit Routing Drawings
Routing plans for electrical infrastructure, ensuring safety and code compliance.

πŸ—οΈ Civil Outline Drawings with Anchoring Details and Foundation Loads
Civil interface drawings including anchoring systems and load-bearing data.

πŸ“‹ Piping Bill of Materials (BOM)
Complete material list for piping systems to support procurement and cost control.

πŸ—οΈ Structural Steel BOM
Detailed steel quantities and specifications for fabrication and assembly.

⚑ Electrical Cable Tray/Conduit BOM
Material breakdown for electrical routing systems.

πŸ”© Anchor Bolts BOM
Specification and quantities of anchor bolts for structural and equipment foundations.

πŸ“‹ Master Bill of Materials (Master BOM)
All components, assemblies, and subassemblies, unique item codes and revisions, descriptions, tags, and classification, quantities, units, and packaging info, installation phase or system association
cross-references to drawings and datasheets, cost, weight, and procurement status…

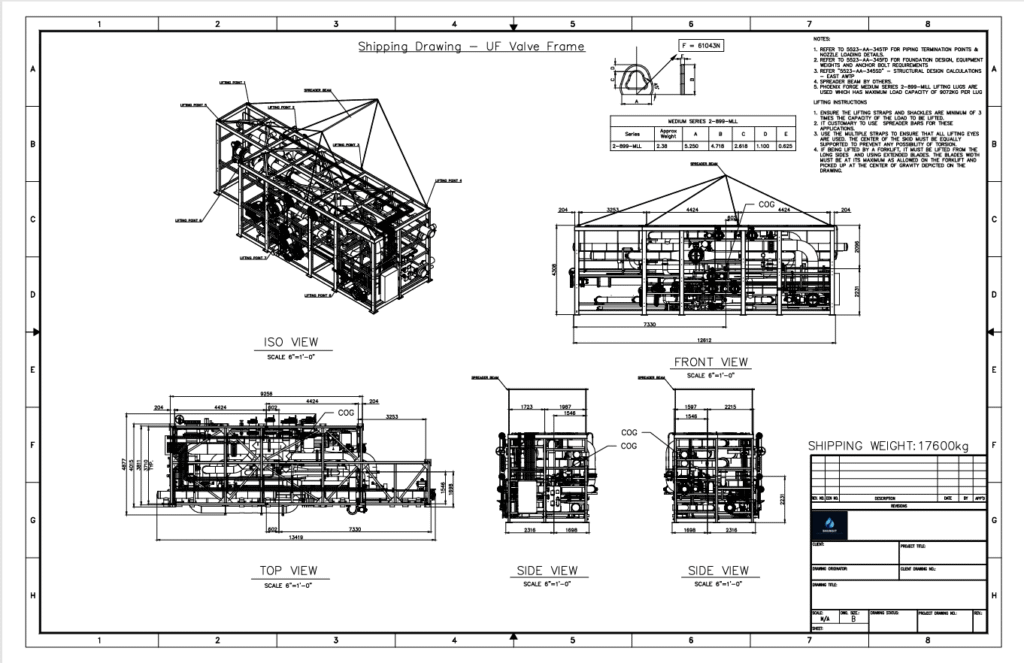
πŸ“¦Shipping Drawings
Technical documentation for equipment dispatch, including:
disassembly and reassembly instructions, transport methods, unit weights, dimensions…

🧾 30% / 60% / 90% Design & Engineering Review Meetings
Formal milestone reviews conducted in front of the client to validate progress and align expectations.

πŸ“‚ Document/Submittal Control & Project Administration
Management of technical documentation, submittals, and administrative workflows to ensure project traceability and compliance.